Bilocale in vendita

Verona, Via Trieste - Borgo Roma
€ 145.000
1 locale 1 locale
45 Mq 45 Mq
1 bagno 1 bagno

Bilocale in vendita

Verona, Via Trieste - Borgo Roma

Descrizione annuncio

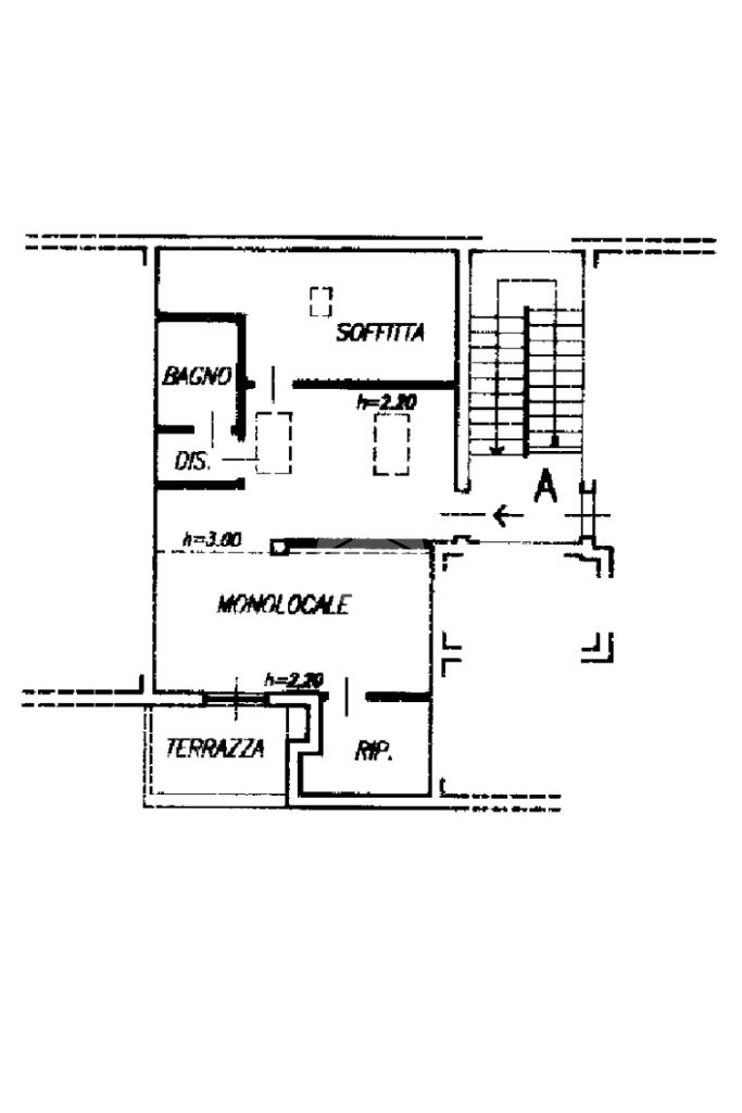
BORGO ROMA – Nel cuore di Borgo Roma, appartamento mansardato di circa 45 mq, situato al quinto piano di un edificio costruito nel ’69, servito da ascensore.

Attualmente locato fino al 31 marzo 2028, l’immobile garantisce un rendimento medio del 5% annuo, rappresentando una soluzione ideale per chi è alla ricerca di un investimento sicuro e redditizio.

Ristrutturato nel 2023, l’appartamento si inserisce in un contesto residenziale curato e tranquillo, offrendo comfort e qualità abitativa. La disposizione interna comprende un monolocale ben organizzato con servizio, perfetto per chi desidera un ambiente accogliente e funzionale.

Completa la proprietà un posto auto coperto.

La posizione strategica, in una zona ben servita, unita alla qualità della ristrutturazione, rende questa soluzione particolarmente interessante.

La vicinanza ai principali servizi e la comodità dei collegamenti fanno di questa proposta un’opportunità da valutare per chi cerca un immobile a Verona.

Mostra tutto

Nelle vicinanze

Trasporto pubblico Trasporto pubblico
stazione di Verona Porta Nuova
stazione di Verona Porta Nuova
1,8 Km
Via Treste 46 II
Via Treste 46 II
130 m
Via Fiume 2
Via Fiume 2
150 m
Ricariche auto elettriche Ricariche auto elettriche
AGSM Viale del Lavoro - Piazzale Fiera
800 m
Hotel San Pietro
940 m
Migross Superstore Verona B.go Roma
950 m
AGSM - Via Righi
1,1 Km
AGSM - Strada Le Grazie
1,3 Km
Scuole Scuole
Scuola Primaria Angela Busti
210 m
Scuola Media Mario Mazza
300 m
Liceo Statale Galileo Galilei
400 m
Istituto Tecnico Economico Statale Luigi Einaudi
450 m
Scuola Primaria Edmondo De Amicis
560 m
Farmacia Farmacia
Farmacia Roma
220 m
Farmacia Santa Teresa
280 m
Farmacia Bacchini
560 m
Farmacia Comunale Tomba
780 m
Farmacia Comunale Palazzina
910 m
Ospedali Ospedali
Policlinico "Giambattista Rossi"
1,1 Km
Supermercati Supermercati
Sapori di Sicilia
480 m
Esselunga
500 m
Prix
500 m
Famila
600 m
Aldi
670 m
Negozi Negozi
petit jardin
530 m
Negozi
1,1 Km
Brugi
1,4 Km
Mavecon
1,6 Km
Coton & Silk
1,8 Km
Bar Bar
Interzona
540 m
Special Mr Martini
660 m
Snupy Bar
670 m
LiquiRizia Caffé
690 m
Bar
810 m
Ristoranti Ristoranti
Al Giardinetto
510 m
Ristorante Pizzeria Grotta Azzurra
510 m
PizzaVoglia
600 m
Pizzeria Guglielmo Vuolo
690 m
Ai Glicini
760 m
Mostra tutto

Caratteristiche

Rif.:
61182452
Piano:
5 di 5 con ascensore (Piano mansarda)
Posti auto:
1
Terrazzi:
1
Camere da letto:
1
Arredamento:
Parziale
Mostra tutto
Prezzo Prezzo
€ 145.000
Rata mutuo Rata mutuo
€ 673 / mese
Spese annue Spese annue
€ 577
Proponi il tuo prezzoProponi il tuo prezzo

Classe Energetica

D
D
D
D
D
D
D
D
D
EP globale non rinnovabile:
70.64 kW h/m² anno
EP globale rinnovabile:
1.13 kW h/m² anno
EP invernale del fabbricato:
EP estiva del fabbricato:
Anno di costruzione:
1970
Riscaldamento:
Autonomo
Tipo impianto:
A radiatori
Tipo alimentazione:
Altro

Ti interessa visionare l'immobile?

Fissa un appuntamento  Fissa un appuntamento

Richiedi informazioni

Clicca su Leggi per aprire l'informativa
* Questi campi sono obbligatori

Calcola il tuo mutuo

Semplice e senza impegno
Anticipo

( % )
Mutuo

( % )

pochi semplici passi

inserisci i tuoi dati
Questionario completato
Grazie per aver richiesto un appuntamento senza impegno con un nostro Consulente del Credito e Assicurativo.

Hai inserito correttamente tutti i dati necessari e a breve riceverai una e-mail con un link da convalidare per inviare i tuoi dati.
Affiliato
Studio Borgo Roma Srl
Via Trieste, 62 37135 Verona (VR)

Il nostro staff


  • Antonio Camera
    Affiliato

  • Victor Ferrighetto
    Collaboratore

  • Matheus Goncalves Amorim
    Collaboratore

  • Irene Marchetto
    Collaboratrice

  • Giovanni Lucchi
    Affiliato
Via Trieste, 62 37135 Verona (VR)
Zona: Borgo Roma - Zai - Sacra Famiglia
Mostra su mappa
Affiliato
Studio Borgo Roma Srl
Via Trieste, 62 37135 Verona (VR)

2026 Tecnocasa Franchising S.p.A. - P. IVA 08365160152 - Via Monte Bianco 60/A 20089 Rozzano (MI). Ogni agenzia ha un proprio titolare ed è autonoma. Privacy policy | Policy utilizzo | Cookie policy